Sanitärcontainer mieten:
Sie möchten Sanitärcontainer mieten – unkompliziert & schnell? Wir bieten Ihnen eine breite Palette an hygienisch Sanitärlösungen, die perfekt auf Ihre Bedürfnisse abgestimmt sind.
Unsere Sanitärcontainer bieten eine flexible und hygienische Lösung für temporäre Sanitäranlagen. Sie sind schnell aufgestellt, leicht zu warten und bieten eine komfortable und saubere Umgebung für Benutzer. Ob auf Baustellen, Festivals, Messen oder bei Notunterkünften – unsere Sanitärcontainer erfüllen höchste Hygienestandards und bieten durchdachte Sanitärlösungen für verschiedenste Einsatzzwecke.
Durch die Möglichkeit, Sanitärcontainer zu mieten, können Unternehmen und Veranstalter flexibel auf wechselnde Anforderungen reagieren, ohne hohe Investitionskosten tragen zu müssen. Bei Neubach finden Sie Sanitärcontainer, die individuell abgestimmt sind, einschließlich WC-Containern, Duschcontainern und speziellen Dusch-WC-Containern.
Große Auswahl - Sanitärcontainer zur Miete
Wir bieten Sanitärcontainer-Anlagen in verschiedenen Typen, Größen und Ausführungen, um sicherzustellen, dass wir die passende Lösung für Ihr Projekt oder Ihre Veranstaltung haben. Hier sind einige unserer beliebtesten Sanitärcontainer:
WC-Container/Toilettencontainer
Unsere WC-Container sind in unterschiedlichen Größen erhältlich und bieten verschiedene Ausstattungen. Sie sind ideal für Baustellen, Events und andere temporäre Einrichtungen. Die WC-Container sind mit modernen Sanitäranlagen und Urinalen ausgestattet, die eine komfortable Nutzung gewährleisten.
Duschcontainer
Unsere Duschcontainer sind perfekt für Veranstaltungen, Baustellen und Unterkünfte geeignet. Sie bieten separate Duschkabinen und sind mit Handwaschbecken und Frischwasser-Anschlüssen ausgestattet. Die Duschcontainer bieten höchsten Komfort und entsprechen allen Hygienestandards.
Dusch-WC-Container
Fäkalientanks
Wir bieten mehr!
Bei Neubach bieten wir Ihnen eine breite Auswahl an Sanitärcontainern verschiedenen Größen und Ausstattungen zur Miete an. Unsere Einzelcontainer sind ideal für kleine Projekte oder als Ergänzung zu bestehenden Gebäuden. Wenn Sie mehr Platz benötigen, können Sie auch größere Containeranlagen und Container mieten, die aus mehreren Raummodulen bestehen. Des Weiteren bieten wir auch viele andere Containerarten, wie z.B. Bürocontainer zur Miete, an.
Dabei legen wir großen Wert auf Funktionalität und Hygiene. Jedes Containermodul kann mit allen notwendigen Funktionalitäten ausgestattet werden. Des Weiteren bieten wir auch viele andere Containerarten, zum Beispiel Bürocontainer zur Miete – die sich ideal mit unseren Sanitärcontainern kombinieren lassen. Für maßgeschneiderte Lösungen stehen wir gerne zur Beratung bereit – Anfragen werden innerhalb von 24 Stunden beantwortet.
So einfach geht's
Mietanfrage
Stellen Sie eine Mietanfrage über unsere Website oder kontaktieren Sie uns per Telefon. Geben Sie dabei Ihre Anforderungen und den gewünschten Einsatzbereich an.
Beratung
Unsere Experten beraten Sie umfassend und finden gemeinsam mit Ihnen die passende Lösung.
Angebot
Sie erhalten ein individuelles Angebot, das genau auf Ihre Bedürfnisse zugeschnitten ist.
Lieferung und Aufbau
Wir liefern die Sanitärcontainer direkt zu Ihrem Einsatzgebiet und übernehmen auf Wunsch auch den Aufbau.
+49 234-777 497 7
info@neubach-container.de
Jetzt mobile Sanitärcontainer mieten!
Prompt liefer- und einsetzbar
Beratung und Planung vor Ort
Fachkundige Montage/Adaptionen durch zertifizierte Partner
Attraktive Mietpreise
Diverse Zusatzausstattungen möglich
Individuell gestaltbar für jedes Einsatzgebiet
Sie sehen gerade einen Platzhalterinhalt von TrustIndex. Um auf den eigentlichen Inhalt zuzugreifen, klicken Sie auf die Schaltfläche unten. Bitte beachten Sie, dass dabei Daten an Drittanbieter weitergegeben werden.
Mehr InformationenIhre Vorteile, wenn Sie Sanitärcontainer mit Neubach mieten
Verfügbarkeit in NRW
Unsere Mietcontainer sind in ganz Nordrhein-Westfalen verfügbar und ideal für Baustellen, Events oder temporäre Büros. Neubach bietet flexible Lösungen und umfassenden Service für alle Anforderungen in der Region.
Wirtschaftlichkeit
Durch das Mieten von Sanitärcontainern sparen Sie hohe Anschaffungskosten und profitieren dennoch von modernen und komfortablen Sanitärlösungen.
Hohe Hygienestandards und Komfort
Unsere Sanitärcontainer zur Miete sind modern ausgestattet und bieten höchsten Komfort. Sie entsprechen allen Hygienestandards und sind leicht zu reinigen und zu warten. Die Sanitäranlagen in unseren Sanitärcontainern sind so konzipiert, dass sie eine angenehme Nutzung gewährleisten.
Flexibilität und Anpassungsfähigkeit
Einer der größten Vorteile, wenn Sie Sanitärcontainer mieten, ist die Flexibilität. Sie können die Sanitärcontainer genau nach Ihrem Bedarf auswählen und anpassen. Ob Sie WC-Container, Duschcontainer, Toilettencontainer oder kombinierte Dusch-WC-Container benötigen – wir finden die passende Lösung für Sie.
Umweltfreundlichkeit
Unsere Sanitärcontainer sind umweltfreundlich gestaltet. Sie sind mit effizienten Frischwasser- und Abwassertank-Systemen ausgestattet, die eine nachhaltige Nutzung ermöglichen. Zudem verwenden wir moderne Technologien, um den Wasserverbrauch zu minimieren.
Schnelle Lieferung
Bei Neubach Raumsysteme legen wir großen Wert auf schnellen und zuverlässigen Service. Unsere Sanitärcontainer werden pünktlich geliefert und sind innerhalb kürzester Zeit einsatzbereit für eine Abholung. Unser erfahrenes Team sorgt für eine reibungslosen Aufbau und Anschluss der Sanitäranlagen.
Sanitärcontainer für verschiedene Verwendungszwecke
Unsere Sanitärcontainer zur Miete sind vielseitig einsetzbar. Besonders beliebt sind unsere Sanitärcontainer für:
Baustellen
Veranstaltungen
Bildungseinrichtungen
Katastropheneinsätze
Als Büroerweiterung
Besonders bei Büroerweiterungen bietet sich die Kombination mit Bürocontainern zur Miete an, um Arbeits- und Sanitärbereiche flexibel zu verbinden.
Jetzt Sanitärcontainer mieten!
Stellen Sie noch heute Ihre Mietanfrage und profitieren Sie von unseren hochwertigen Sanitärcontainern. Bei Neubach Raumsysteme finden Sie die passende Lösung für Ihre Sanitär-Bedürfnisse. Ob WC-Container, Duschcontainer, Toilettencontainer oder Dusch-WC-Container – wir bieten Ihnen flexible und komfortable Sanitärlösungen. Kontaktieren Sie uns jetzt und lassen Sie sich von unserem erfahrenen Team beraten - wir antworten innerhalb von 24 Stunden!
Sie suchen auch nach Bürocontainern oder Lagercontainern?
Neben Sanitärcontainer bieten wir auch Lagercontainer zur Miete und Bürocontainer zur Miete an. Diese Container sind ideal für Baustellen, temporäre Büros oder Lagerräume. Sie sind robust, sicher und bieten eine komfortable Arbeitsumgebung.
Häufige Fragen rund um das Thema Sanitärcontainer mieten
Die Mietkosten richten sich nach Größe und Ausstattung. Neubach Container bietet 10- und 20-Fuß-Sanitärcontainer an – wahlweise als WC-Container, Duschcontainer oder Kombi-Modelle. Auch Frischwassertanks und Fäkalientanks können dazugemietet werden.
Die genauen Preise werden individuell berechnet und beinhalten bei Tanks stets Treppe und Podest.
Der Preis hängt vor allem von der Größe, der Ausstattung (z. B. Dusche, WC oder Kombination) und der Mietdauer ab. Zusätzlich können Tanks, Anschlüsse oder Reinigungsservices hinzukommen. Längere Mietzeiten führen in der Regel zu günstigeren Konditionen.
Neben der Miete fallen bei Bedarf Liefer- und Aufbaukosten an. Optional können Frischwasser- oder Fäkalientanks, Treppe, Podest oder Reinigungsleistungen dazugebucht werden. Bei erheblichen Verschmutzungen nach Mietende kann eine Sonderreinigung berechnet werden.
Die Mietdauer ist flexibel. Sanitärcontainer können kurzfristig oder über mehrere Monate angemietet werden – ideal für Baustellen oder Events.
Es ist ratsam, Ihre Mietanfrage so früh wie möglich zu stellen, um sicherzustellen, dass wir die gewünschten Sanitärcontainer zum gewünschten Zeitpunkt verfügbar haben. Wir empfehlen eine Vorlaufzeit von mindestens zwei Wochen.
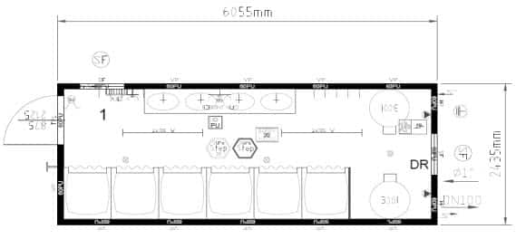
Sanitärcontainer benötigen:
Strom: 400 V / 32 A CEE-Stecker
Zuwasser: C-Schlauch oder ¾″ GEKA-Kupplung
Abwasser: DN 100 mm HT
Anschlussarbeiten dürfen nur von Fachfirmen nach den geltenden Vorschriften (Trinkwasserverordnung) ausgeführt werden.
Ja, Sanitärcontainer sind grundsätzlich ganzjährig nutzbar.
Wichtig ist jedoch der Frostschutz:
Der Boiler muss vor dem Anschluss ans Stromnetz mit Wasser befüllt werden.
Bei Frostgefahr sollte Heizung dauerhaft in Betrieb bleiben.
Vor Mietende ist das Wasser aus Boilern und Leitungen vollständig zu entleeren.
Bei längeren Stillstandszeiten empfiehlt sich ein regelmäßiges Aufheizen und Durchspülen des Wassers.
Unsere Sanitärcontainer erfüllen höchste Hygienestandards und sind mit modernen Sanitäranlagen ausgestattet, die eine saubere und komfortable Nutzung gewährleisten.
Ja, wir bieten Sanitärcontainer in verschiedenen Farben und Designs an, die sich an Ihren individuellen Anforderungen orientieren. Auf Wunsch können wir die Sanitärcontainer auch in speziellen RAL-Farben liefern.
Die Reinigung und Entleerung der Tanks erfolgt grundsätzlich kundenseits.
Auf Wunsch kann Neubach Container hierfür Partnerunternehmen beauftragen.
Wichtig: Tanks müssen vor Abholung vollständig entleert sein.
Kontakt und Beratung
Für weitere Informationen und eine individuelle Beratung stehen wir Ihnen gerne zur Verfügung. Kontaktieren Sie uns telefonisch oder per E-Mail und stellen Sie Ihre Mietanfrage. Wir freuen uns darauf, Ihnen die besten Sanitärlösungen für Ihr Projekt oder Ihre Veranstaltung anzubieten.
+49 234-777 497 7
info@neubach-container.de
